FIRENZE SETTIGNANO Appartamento con giardino
Rif.C11-078 | 181 mq | camere: 3+ | bagni: | € 710.000
Descrizione
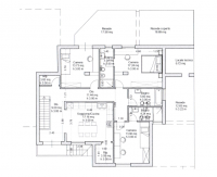
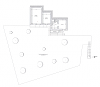
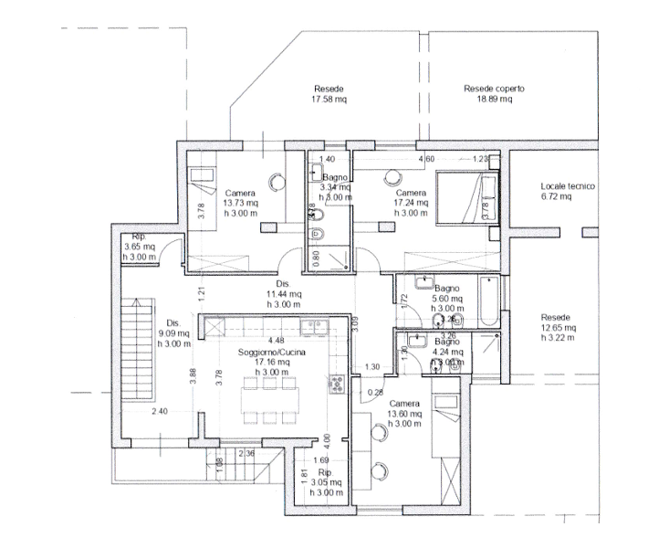
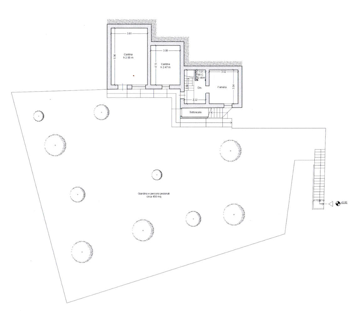
FIRENZE SETTIGNANO Proponiamo in vendita particolare appartamento con strepitoso giardino panoramico su Firenze di proprietà esclusiva. L’immobile si sviluppa su due livelli e si compone da: ampio living con angolo cottura, tre camere da letto, tre servizi, due ripostigli e due resedi ad un piano; al piano inferiore due camere ed un servizio / cantina. L’immobile è oggetto di completa e raffinata ristrutturazione. Posto in zona tranquilla e panoramica, facilmente accessibile.
Dettagli
| Anno di costruzione: | 1900 |
| Prezzo: | € 710.000 |
| Spese condominiali: | € 30 |
| Metri quadri: | 181 mq |
| bagni: | 4 |
| Classe energetica: |
I.P.E. 145,97 kWh/m2 anno |
| numero locali: | 6 |
| numero portoni: | 1 |
| poggioli/balconi: | 1 |
| ripostigli: | 2 |
| totale piani: | 2 |
Ambienti: | |
Comfort: | |
Livelli: | |
| Comune: | Firenze |
| Indirizzo: | VIA DELLA PASTORELLA |
145.97 kWh/m
2
anno















