FIRENZE GALLUZZO Fondo in affitto
Rif.C4A-075 | 420 mq | camere: 3 | bagni: 2 | € 2.000
Descrizione
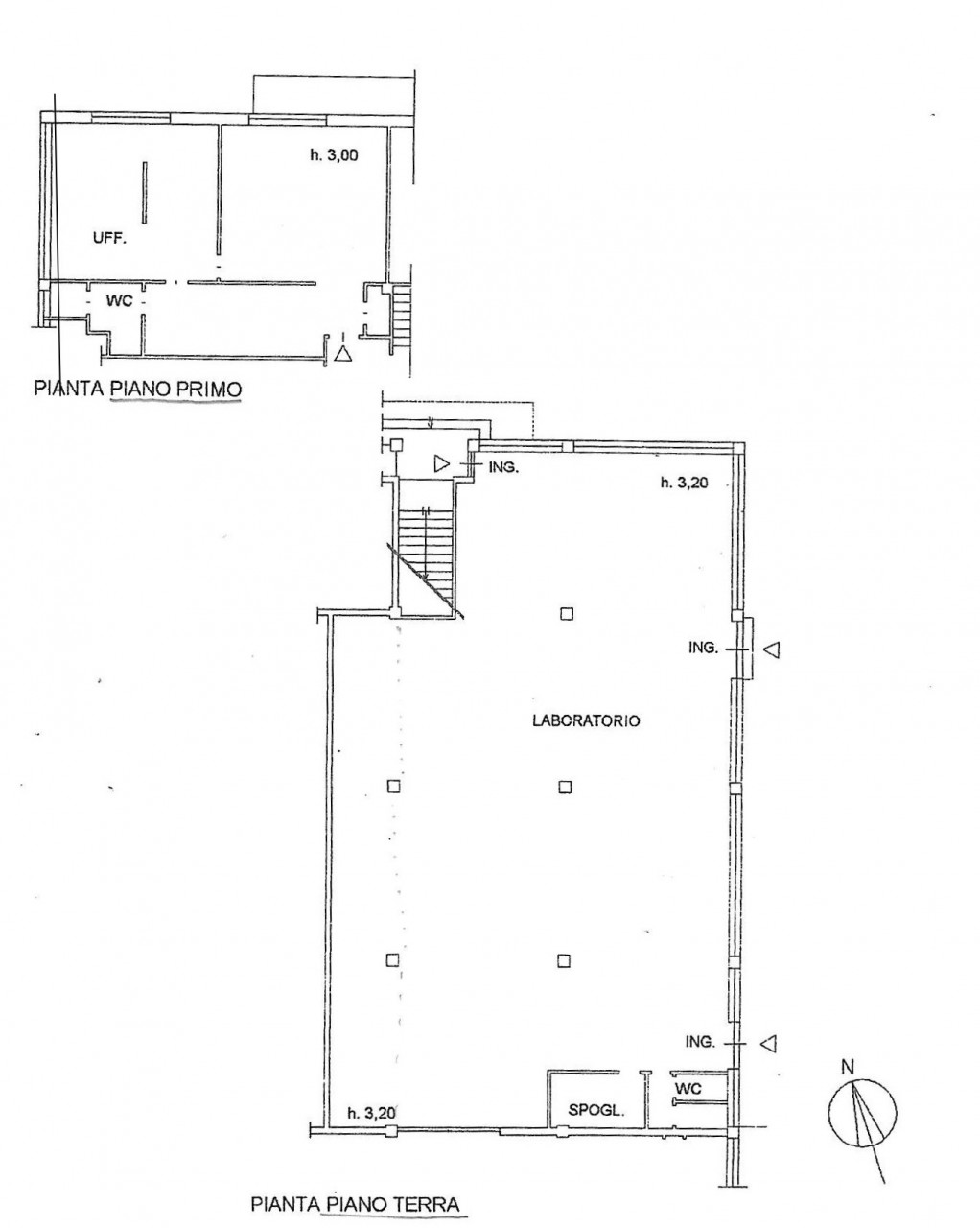
FIRENZE GALLUZZO Zona Cascine del Riccio All’interno di un più ampio complesso artigianale con accesso indipendente e posti auto, disponiamo di fondo D/7, complessivamente di 300 mq posto al primo piano suddiviso al suo interno da quattro ampie sale e doppi servizi. Disponibile da Gennaio 2026.
Dettagli
| Prezzo: | € 2.000 |
| Metri quadri: | 420 mq |
| bagni: | 2 |
| camere: | 3 |
| Classe energetica: |
I.P.E. 145,97 kWh/m3 anno |
| numero accessi carrai: | 1 |
| numero locali: | 3 |
| numero portoni: | 1 |
| posto auto: | 1 |
| totale piani: | 1 |
Comfort: | |
Livelli: | |
| Comune: | Firenze |
| Indirizzo: | Via del Ponte a Iozzi |
145.97 kWh/m
3
anno


















